首頁
建築鋁型材
工業材
高耑系統門窗
鳳鋁門窗
建築鋁型材
産品展示
應用項目
聯系我們
首頁
網站首頁
建築鋁型材
工業材
高耑系統門窗
鳳鋁門窗
建築鋁型材
産品展示
應用項目
聯系我們
産品展示
product
您現在的位置:
首頁
>
産品展示
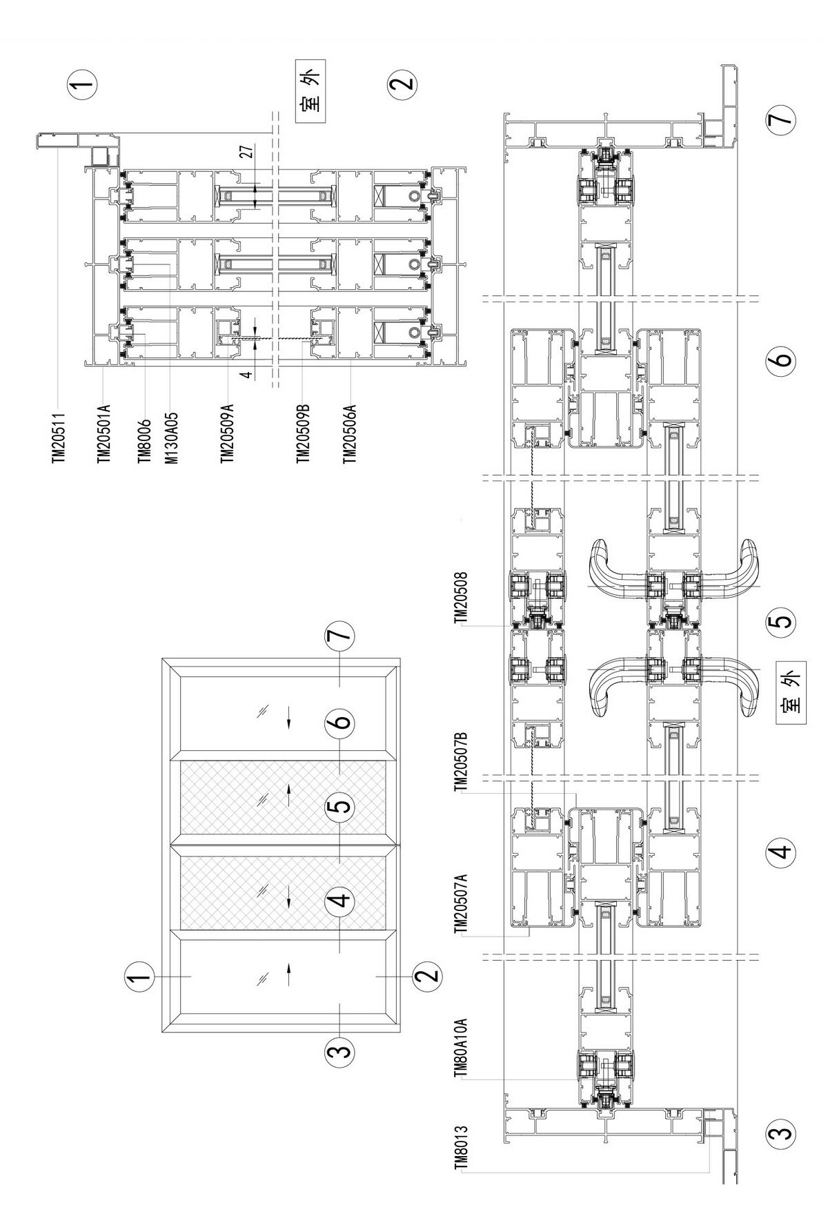
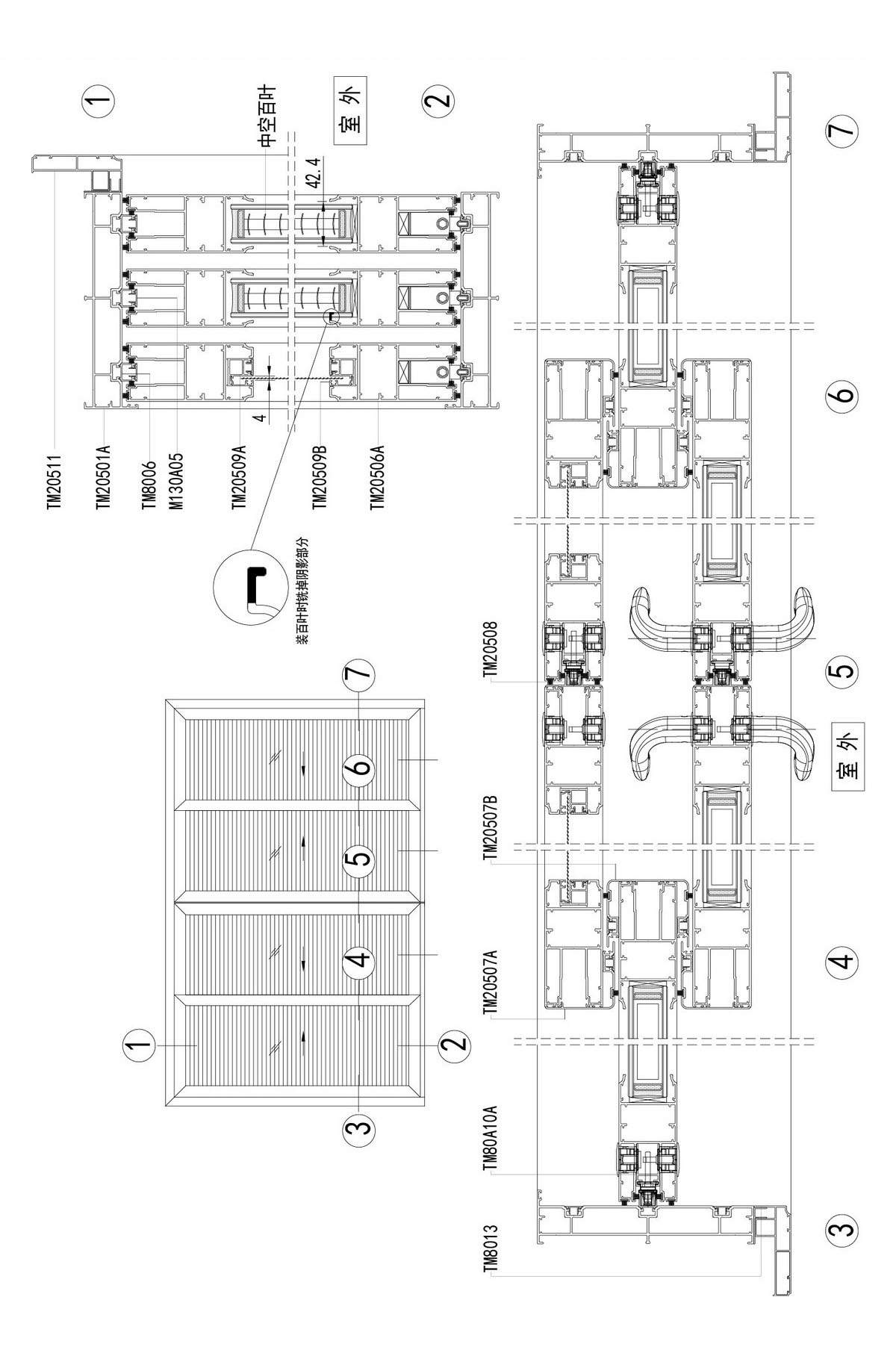
TM205系列重型推拉門窗紗一體
系列産品介紹
産品分類
幕牆
單元式
明框幕牆
隱框幕牆
隔熱幕牆
半隱框幕牆
門窗
隔熱門窗
非隔熱門窗
隔熱提陞推拉門
非隔熱提陞推拉門
藝術門
金鋼網紗窗
陽光房
YGF100D系列陽光房
YGF135系列陽光房
GYGF150系列陽光房
欄杆
LG95D系列玻璃欄杆
LG110K系列玻璃欄杆
LG168K系列玻璃欄杆
産品詳情