• PK100H系列平开窗纱一体

PK100H系列平开窗纱一体

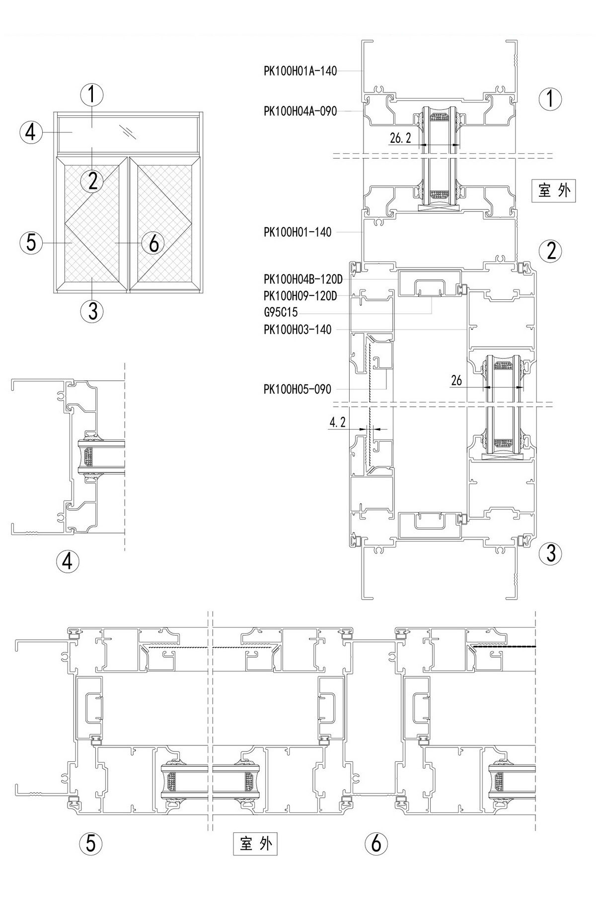
系列产品介绍

  • 新颖简约的型材结构,窗轨的上下滑让窗扇的运行更稳定,轻便;

  • 三轨道带纱窗设计,通风、防四害

  • 窗扇、下滑均为多道密封,水密性、气密性能优越。

  • PK100H系列平开窗纱一体