首页
建筑铝型材
特种工业材
高端系统门窗
谈球吧新家装门窗
建筑铝型材
产品展示
应用项目
联系我们
首页
网站首页
建筑铝型材
特种工业材
高端系统门窗
谈球吧新家装门窗
建筑铝型材
产品展示
应用项目
联系我们
产品展示
product
您现在的位置:
首页
>
产品展示
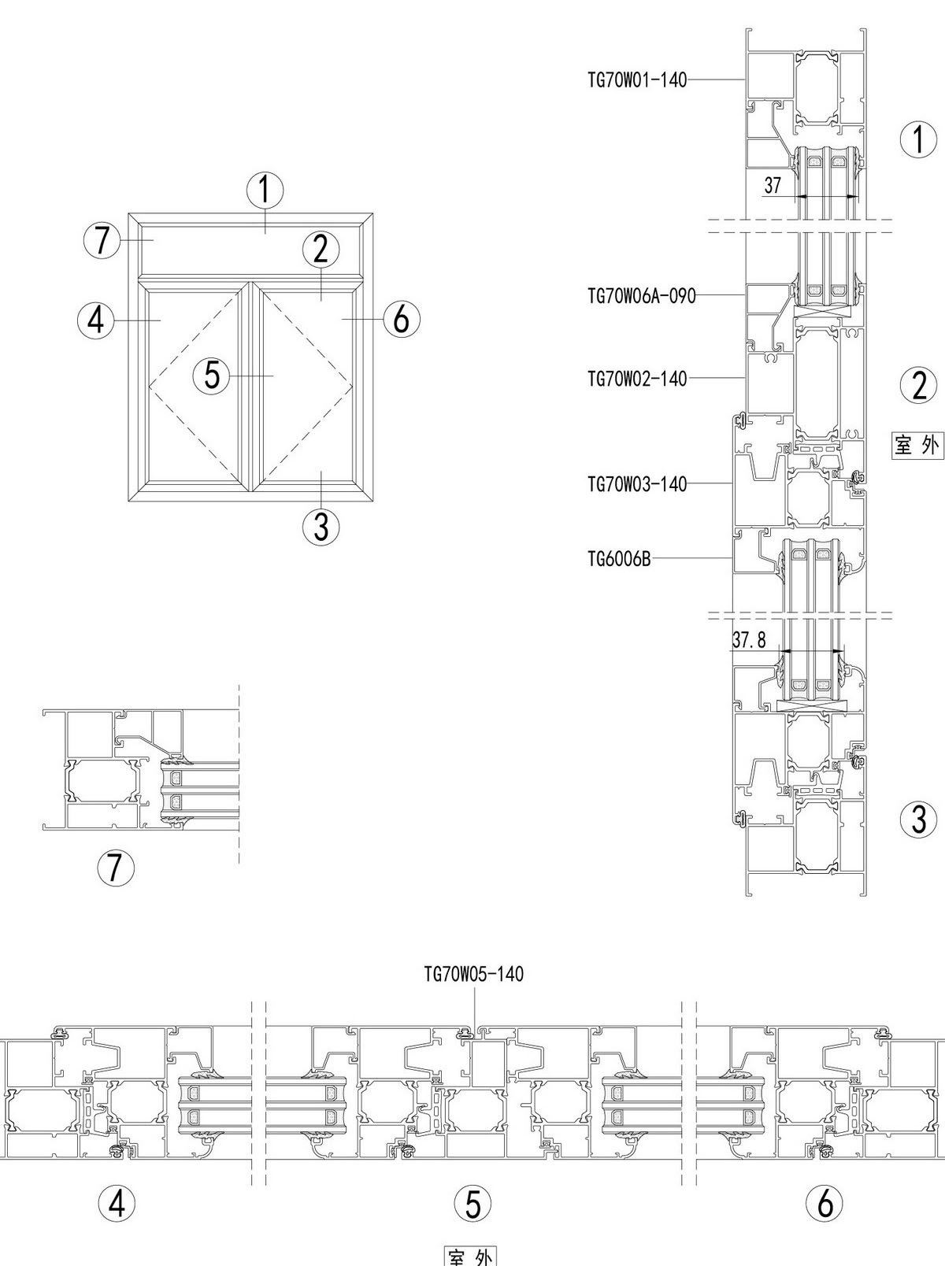
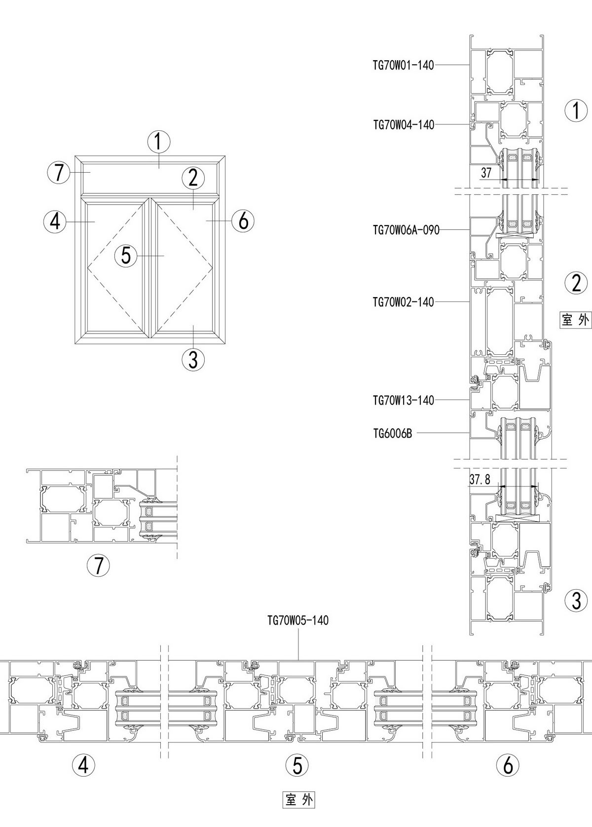
TG70W系列隔热(内)外开窗
系列产品介绍
产品分类
幕墙
单元式
明框幕墙
隐框幕墙
隔热幕墙
半隐框幕墙
门窗
隔热门窗
非隔热门窗
隔热提升推拉门
非隔热提升推拉门
艺术门
金钢网纱窗
阳光房
YGF100D系列阳光房
YGF135系列阳光房
GYGF150系列阳光房
栏杆
LG95D系列玻璃栏杆
LG110K系列玻璃栏杆
LG168K系列玻璃栏杆
产品详情